居抜き店舗物件を紹介します。造作を高価で買取ります。
白山 和食居抜 1-2階 38坪 65万円 造作譲渡費 無償
文京区白山5丁目 物件番号 260323-51
都営三田線「白山」駅 徒歩1分
駅A1出口すぐ、旧白山通り沿い、周辺飲食店多数
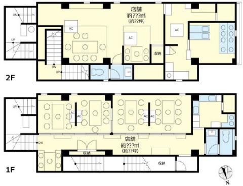
居抜、元和食店
階数・面積 1-2階 38.24坪 (126.40㎡)
賃料 65万円(税別) 共益費 含む
保証金 5ヶ月 償却費 なし
契約期間 定借3年 再契約 1ヶ月 ※
礼金 1ヶ月 仲介手数料 1ヶ月(家賃)
造作譲渡費 無償
業態 飲食可(業態相談)
引渡 相談
備考 ※重飲食・深夜営業不可、再契約事務手数料:0.5ヶ月
※火災保険加入要。賃貸保証加入要検討。
※ネット等への転載不可。





※画像はGoogleから。現状とは異なる場合あり。
周辺地図:物件は明示していません。詳細はお問い合わせください。
