居抜き店舗物件を紹介します。造作を高価で買取ります。
秋葉原 飲食可 1-4階 37坪 100万円
千代田区神田佐久間町2丁目 物件番号 250519-42
地下鉄 「秋葉原」駅 徒歩2分
JR各線 「秋葉原」駅 徒歩4分
総武線高架近く、昭和通り入る清美通り
現況渡し、元江戸提灯製造会社
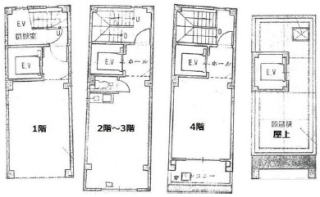
階数・面積 1-4階 合計 37.32坪 (123.37㎡)
賃料 100万円(税別)※ 共益費 含む
保証金 10ヶ月 償却費 3ヶ月
契約期間 定借2年 再契約 相談
礼金 1ヶ月 仲介手数料 1ヶ月(家賃)
業態 飲食可
引渡 相談
備考 ※物販サービスは100万円、外国籍不可、
エレベータあり、焼肉・ラーメン相談可




※火災保険加入要。賃貸保証加入要検討。
※ネット等への転載不可。
※画像はGoogleから。現状とは異なる場合あり。
周辺地図:物件は明示していません。詳細はお問い合わせください。
