居抜き店舗物件を紹介します。造作を高価で買取ります。
神田鍛冶町 バー居抜 1階 18坪 74万円 造作譲渡費 無償
千代田区鍛冶町1丁目 物件番号 230410-63
JR・地下鉄各線 「神田」駅 徒歩1分
駅至近、金物通り、駅南口信号近く
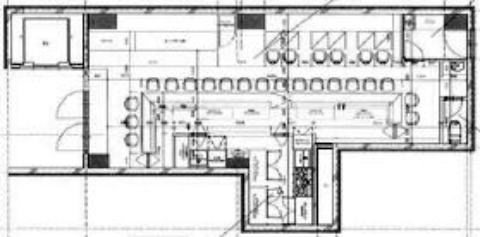
居抜、元バー
階数・面積 1階 18.48坪 (61.09㎡)
賃料 73.92万円(税別) 共益費 含む
保証金 10ヶ月 償却費 なし
契約期間 2年 更新料 1ヶ月
礼金 1ヶ月 仲介手数料 1ヶ月(家賃)
造作譲渡費 無償
業態 飲食可(業態相談)
引渡 即日
備考 ※重飲食不可
※火災保険加入要。賃貸保証加入要検討。
※ネット等への転載不可。





※画像はGoogleから。現状とは異なる場合あり。
周辺地図:物件は明示していません。詳細はお問い合わせください。
