居抜き店舗物件を紹介します。造作を高価で買取ります。
神田須田町 飲食可 2階 39坪 124万円
千代田区神田須田町1丁目 物件番号 250909-41
JR・地下鉄各線 「神田」駅 徒歩1分
一八通り角地、中央通り近く
新築スケルトン、2024年10月竣工
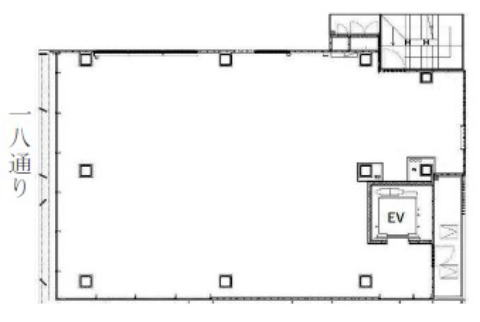
階数・面積 2階 38.77坪 (128.16㎡)
賃料 124.07万円(税別) 共益費 含む
保証金 10ヶ月 償却費 なし
契約期間 定借5年 再契約 相談
礼金 なし 仲介手数料 1ヶ月(家賃)
業態 飲食可(業態相談)
引渡 相談
備考 ※エレベータあり、別途内装工事管理費あり、ガス16号設置可
※火災保険加入要。賃貸保証加入要検討。
※ネット等への転載不可。




※画像はGoogleから。現状とは異なる場合あり。
周辺地図:物件は明示していません。詳細はお問い合わせください。
