居抜き店舗物件を紹介します。造作を高価で買取ります。
銀座 飲食可 B1階 17坪 63万円
中央区銀座2丁目 物件番号 180219-13
地下鉄各線 「銀座」駅 徒歩8分
地下鉄 「銀座一丁目」駅 徒歩1分
駅至近、銀座レンガ通り
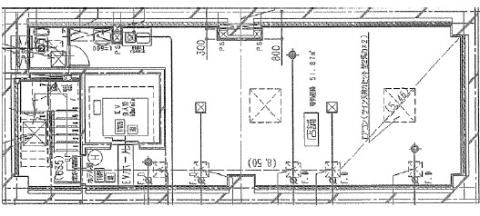
スケルトン渡し、元ネイルサロン
階数・面積 地下1階 17.26坪 (57.06㎡)
賃料 63.21万円(税別) 共益費 2.8万円(税別)
保証金 10ヶ月 償却費 1ヶ月
契約期間 定借2年 再契約 1ヶ月
礼金 1ヶ月 仲介手数料 1ヶ月(家賃)
業態 飲食可(業態相談)
引渡 2026年4月中旬予定
備考 ※専用階段、エレベータあり看板作成取付B工事9.8万円/月(税別)、
看板料1.2万円(税別)、ごみ処理代6千円/月(税別)、
重飲食不可、カフェ・BARお勧め
※火災保険加入要。賃貸保証加入要検討。
※ネット等への転載不可。




※画像はGoogleから。現状とは異なる場合あり。
周辺地図:物件は明示していません。詳細はお問い合わせください。
