居抜き店舗物件を紹介します。造作を高価で買取ります。
小伝馬町 飲食可 1階 39坪 62万円
中央区日本橋堀留町1丁目 物件番号 260224-41
地下鉄 「小伝馬町」駅 徒歩4分
人形町通り入る、日本橋消防署堀留出張所前
現況渡し、現事務所(盛業中に付き内密に願います)
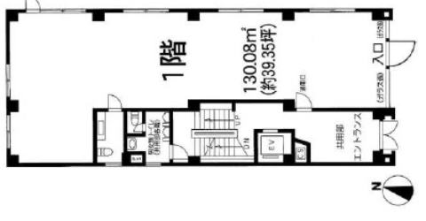
階数・面積 1階 39.35坪 (130.08㎡)
賃料 62万円(税別) 共益費 含む
保証金 6ヶ月 償却費 2ヶ月
契約期間 2年 更新料 1ヶ月
礼金 なし 仲介手数料 1ヶ月(家賃)
業態 飲食可 (業態相談)
引渡 相談
備考 ※重飲食不可、カフェ業態相談可
※火災保険加入要。賃貸保証加入要検討。
※ネット等への転載不可。




※画像はGoogleから。現状とは異なる場合あり。
周辺地図:物件は明示していません。詳細はお問い合わせください。
