居抜き店舗物件を紹介します。造作を高価で買取ります。
新富町 飲食可 1-2階 31坪 157万円
中央区銀座1丁目 物件番号 260311-52
地下鉄「新富町」駅 徒歩3分
地下鉄「銀座一丁目」駅 徒歩6分
銀座タワーそば、京橋公園近く
新築スケルトン、2025年6月竣工
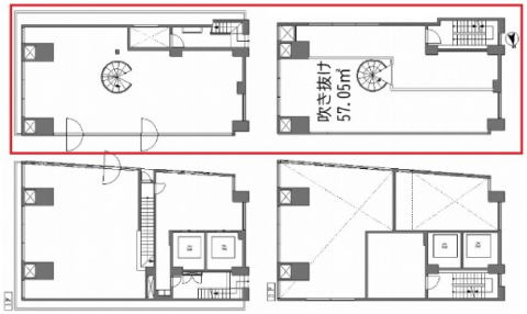
階数・面積 1階21.61坪(71.44㎡)2階9.81坪(32.44㎡)
合計 31.42坪 (103.88㎡)
賃料 157.1万円(税別) 共益費 含む
保証金 10ヶ月 償却費 1ヶ月
契約期間 普通借3年 更新料 1ヶ月
礼金 1ヶ月 仲介手数料 1ヶ月(家賃)
業態 飲食可(業態相談)
引渡 相談
備考
※火災保険加入要。賃貸保証加入要検討。
※ネット等への転載不可。




※画像はGoogleから。現状とは異なる場合あり。
周辺地図:物件は明示していません。詳細はお問い合わせください。
