居抜き店舗物件を紹介します。造作を高価で買取ります。
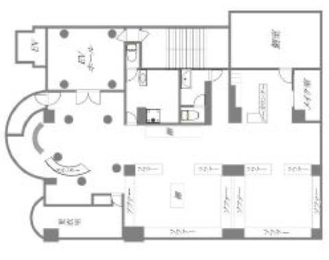
葛西 クラブ居抜 4階 67坪 65万円 造作譲渡費 無償
江戸川区東葛西6丁目 物件番号 240109-61
東京メトロ東西線「葛西」駅 徒歩1分
南口、ロータリー近く、環七通り
居抜き(スケルトン相談可)、元クラブ
階数・面積 4階 66.9坪 (221.15㎡)
賃料 65万円(税別) 共益費 含む
保証金 500万円 償却費 20%
契約期間 定借7年 再契約 相談
礼金 1ヶ月 仲介手数料 1ヶ月(家賃)
造作譲渡費 無償
業態 飲食可(業態相談)
引渡 相談
備考 ※焼肉相談※エレベーターあり
※火災保険加入要。賃貸保証加入要検討。
※ネット等への転載不可。




※画像はGoogleから。現状とは異なる場合あり。
周辺地図:物件は明示していません。詳細はお問い合わせください。
