居抜き店舗物件を紹介します。造作を高価で買取ります。
亀有 飲食可 1階 31坪 87万円
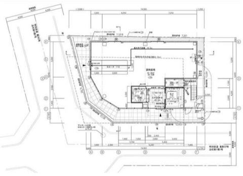
葛飾区亀有5丁目 物件番号 260410-53
JR「亀有」駅 徒歩3分
亀有北口一番街商店会先、周辺飲食店多数
新築スケルトン、2027年3月竣工予定
階数・面積 1階 30.73坪 (101.58㎡)
賃料 87万円(税別) 共益費 含む
保証金 8ヶ月 償却費 なし
契約期間 定借10年 ※ 再契約 相談
礼金 1ヶ月 仲介手数料 1ヶ月(家賃)
業態 飲食可(業態相談)
引渡 相談
備考 ※重飲食不可、中途解約規約有り(期間相談)
※火災保険加入要。賃貸保証加入要検討。
※ネット等への転載不可。




※画像はGoogleから。現状とは異なる場合あり。
周辺地図:物件は明示していません。詳細はお問い合わせください。
