居抜き店舗物件を紹介します。造作を高価で買取ります。
金町 居酒屋居抜 1階 27坪 52万円 造作譲渡費 相談
葛飾区東金町1丁目 物件番号 260317-41
JR常磐線 「金町」駅 徒歩3分
理科大通り一筋入る飲食店街角地
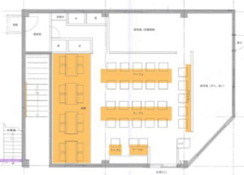
居抜、現居酒屋(盛業中に付き内密に願います)
階数・面積 1階 27.29坪 (90.2㎡)
賃料 51.8万円(税別) 共益費 含む
保証金 10ヶ月 償却費 1ヶ月
契約期間 定借5年 再契約 1ヶ月
礼金 2ヶ月 仲介手数料 1ヶ月(家賃)
造作譲渡費 相談
業態 飲食可
引渡 2026年4月30日
備考 ※安心サポート24時間1.5万円/月(税別)、
焼肉・ラーメン相談可
※火災保険加入要。賃貸保証加入要検討。
※ネット等への転載不可。





※画像はGoogleから。現状とは異なる場合あり。
周辺地図:物件は明示していません。詳細はお問い合わせください。
