居抜き店舗物件を紹介します。造作を高価で買取ります。
東十条 飲食可 1階 101坪 300万円
北区東十条4丁目 物件番号 240913-64
JR京浜東北線「東十条」駅 徒歩2分
北口(東側)東十条銀座通り商店街入る角地
スケルトン、元パチンコ店
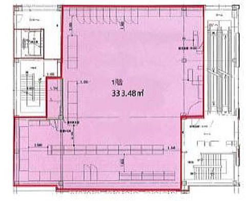
階数・面積 1階 100.88坪 (333.48㎡)
*2階106.09坪148.19万円(税別)も募集中
賃料 300万円(税別) 共益費 含む
保証金 6ヶ月 償却費 1ヶ月
契約期間 定借10年 再契約 相談
礼金 なし 仲介手数料 1ヶ月(家賃)
業態 飲食可(業態相談)
引渡 相談
備考 ※焼肉相談可
※火災保険加入要。賃貸保証加入要検討。
※ネット等への転載不可。
※画像はGoogleから。現状とは異なる場合あり。




周辺地図:物件は明示していません。詳細はお問い合わせください。
