居抜き店舗物件を紹介します。造作を高価で買取ります。
亀戸 飲食可 2階 247坪 賃料相談
江東区亀戸5丁目 物件番号 260409-41
JR総武線 「亀戸」駅 徒歩5分
亀戸中央通り商店街角地
現況渡し(分割を含め相談)、現事務所
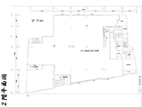
階数・面積 2階 247.32坪 (817.59㎡)
*分割応相談
賃料 1.3万円/坪(税別)目途 共益費 含む
保証金 6ヶ月 償却費 ※
契約期間 定借3~6年相談 再契約 相談
礼金 2ヶ月 仲介手数料 1ヶ月(家賃)
業態 飲食可
引渡 2026年5月以降相談
備考 ※満期解約償却なし、
解約禁止期間賃料全額~半額分を一括支払い、
重飲食相談可
※火災保険加入要。賃貸保証加入要検討。
※ネット等への転載不可。




※画像はGoogleから。現状とは異なる場合あり。
周辺地図:物件は明示していません。詳細はお問い合わせください。
