居抜き店舗物件を紹介します。造作を高価で買取ります。
門前仲町 飲食可 B1-2階 48坪 109万円 造作譲渡費 無償
江東区門前仲町1丁目 物件番号 230613-61
東京メトロ東西線「門前仲町」駅 徒歩1分
清澄通り、黒船橋・交差点近く
現況渡し、元居酒屋、物販店
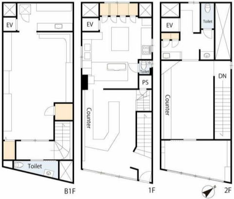
階数・面積 地下1階、1階、2階各約16.11坪
計48.33坪(159.77㎡)
賃料 109.1万円(税別) 共益費 含む
保証金 4ヶ月 償却費 なし
契約期間 3年 更新料 1ヶ月
礼金 1ヶ月 仲介手数料 1ヶ月(家賃)
造作譲渡費 無償
業態 飲食可(業態相談)
引渡 相談
備考 ※ダムウェーターあり、ダクト設置で重飲食相談可
※火災保険加入要。賃貸保証加入要検討。
※ネット等への転載不可。




※画像はGoogleから。現状とは異なる場合あり。
周辺地図:物件は明示していません。詳細はお問い合わせください。
