居抜き店舗物件を紹介します。造作を高価で買取ります。
学芸大学 飲食可 2階 33坪 85万円
目黒区鷹番3丁目 物件番号 260317-53
東急東横線 「学芸大学」駅 徒歩3分
西口商店街入る碑文谷公園通り
新築スケルトン、2026年7月竣工予定
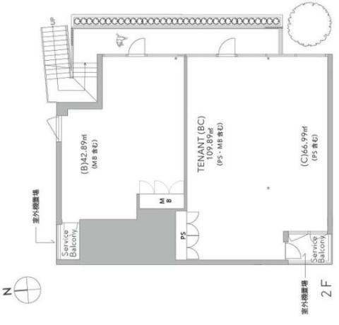
階数・面積 2階 33.24坪 (109.89㎡)
賃料 85万円(税別) 共益費 9.5万円(税別)
保証金 6ヶ月 償却費 なし
契約期間 3年 更新料 1ヶ月
礼金 1ヶ月 仲介手数料 1ヶ月(家賃)
業態 飲食可(業態相談)
引渡 2026年8月予定
備考 ※別途事務手数料有、重飲食相談可
※火災保険加入要。賃貸保証加入要検討。
※ネット等への転載不可。




※画像はGoogleから。現状とは異なる場合あり。
周辺地図:物件は明示していません。詳細はお問い合わせください。
