居抜き店舗物件を紹介します。造作を高価で買取ります。
中目黒 飲食可 1階 35坪 175万円
目黒区上目黒1丁目 物件番号 260406-53
地下鉄線・東急線「中目黒」駅 徒歩3分
目黒川桜並木そば、日の出橋渡りすぐ
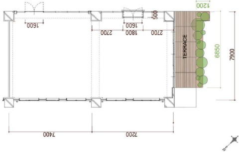
新築スケルトン、2026年9月竣工予定
階数・面積 1階 34.61坪 (114.44㎡)
賃料 175万円(税別) 共益費 含む
保証金 4.1ヶ月 償却費 1.1ヶ月
契約期間 定借5年 再契約 1.1ヶ月
礼金 なし 仲介手数料 1ヶ月(家賃)
業態 飲食可(業態相談)
引渡 相談
備考 ※契約事務手数料:1.1ヶ月、
社名表示作成料:15千円(税別)、
焼肉相談可
※火災保険加入要。賃貸保証加入要検討。
※ネット等への転載不可。




※画像はGoogleから。現状とは異なる場合あり。
周辺地図:物件は明示していません。詳細はお問い合わせください。
