居抜き店舗物件を紹介します。造作を高価で買取ります。
赤坂見附 飲食可 1階 42坪 135万円
港区赤坂4丁目 物件番号 260406-41
地下鉄各線 「赤坂見附」駅 徒歩3分
地下鉄 「赤坂」駅 徒歩6分
一ツ木通り角地、赤坂不動尊入口付近
新築スケルトン、2026年1月竣工
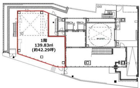
階数・面積 1階 42.3坪 (139.83㎡)
賃料 135.33万円(税別) 共益費 12.18万円(税別)
保証金 10ヶ月 償却費 なし
契約期間 定借5年 再契約 相談
礼金 なし 仲介手数料 1ヶ月(家賃)
業態 飲食可 (業態相談)
引渡 即時
備考
※火災保険加入要。賃貸保証加入要検討。
※ネット等への転載不可。




※画像はGoogleから。現状とは異なる場合あり。
周辺地図:物件は明示していません。詳細はお問い合わせください。
