居抜き店舗物件を紹介します。造作を高価で買取ります。
外苑前 飲食可 1階 62坪 317万円
港区南青山3丁目 物件番号 250711-42
地下鉄 「外苑前」駅 徒歩5分
外苑西通り入る一筋違い
スケルトン渡し、現美容室(盛業中に付き内密に願います)
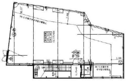
階数・面積 1階 62.24坪 (205.76㎡)
*地下1階39坪135万円(税別)も募集中
賃料 317.28万円(税別) 共益費 10万円(税別)
保証金 10ヶ月 償却費 10% *中途解約20%
契約期間 定借5年 相談 再契約 1ヶ月
礼金 1ヶ月 仲介手数料 1ヶ月(家賃)
業態 飲食可(業態相談)
引渡 相談
備考 ※お洒落な業態希望、イタリアン・フレンチ等業態歓迎
※火災保険加入要。賃貸保証加入要検討。
※ネット等への転載不可。




※画像はGoogleから。現状とは異なる場合あり。
周辺地図:物件は明示していません。詳細はお問い合わせください。
