居抜き店舗物件を紹介します。造作を高価で買取ります。
中野 飲食可 1階 9坪 50万円
中野区中野3丁目 物件番号 251223-51
JR・地下鉄「中野」駅 徒歩5分
中野五差路沿い角地
新築スケルトン、2025年12月竣工
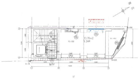
階数・面積 1階 9.31坪(30.78㎡)
賃料 50万円(税別) 共益費 3万円
保証金 8ヶ月 償却費 3ヶ月
契約期間 2年(転貸) 更新料 1.5ヶ月(事務手数料含む)
礼金 2ヶ月 仲介手数料 1ヶ月(家賃)
業態 飲食可(業態相談)
引渡 相談
備考 ※焼肉相談可(匂い・煙・油対策必須)
※火災保険加入要。賃貸保証加入要検討。
※ネット等への転載不可。




※画像はGoogleから。現状とは異なる場合あり。
周辺地図:物件は明示していません。詳細はお問い合わせください。
