居抜き店舗物件を紹介します。造作を高価で買取ります。
中野新橋 飲食可 1階 19坪 48万円
中野区弥生町2丁目 物件番号 230728-47
東京メトロ丸ノ内線「中野新橋」駅 徒歩1分
新橋通り、駅改札前
スケルトン、元携帯ショップ
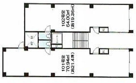
階数・面積 1階 約19.36坪 (64㎡)
賃料 48万円(税別) 共益費 含む
保証金 6ヶ月 償却費 2ヶ月
契約期間 定借3年 再契約 1ヶ月
礼金 1ヶ月 仲介手数料 1ヶ月(家賃)
業態 飲食可(業態相談)
引渡 相談
備考 ※ミニキッチン残置、焼肉・ラーメン相談可
※火災保険加入要。賃貸保証加入要検討。
※ネット等への転載不可。
※画像はGoogleから。現状とは異なる場合あり。




周辺地図:物件は明示していません。詳細はお問い合わせください。
