居抜き店舗物件を紹介します。造作を高価で買取ります。
洗足池 飲食可 1階 20坪 60万円
大田区南千束1丁目 物件番号 250908-42
東急池上線 「洗足池」駅 徒歩2分
駅至近、中原街道、洗足池ボートハウス近く、視認性良好
スケルトン、2024年7月竣工未入居
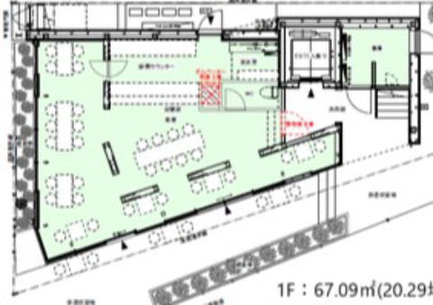
階数・面積 1階 20.29坪 (67.09㎡)
賃料 60万円(税別) 共益費 含む
保証金 15ヶ月 償却費 30%
契約期間 普通借3年 更新料 1ヶ月
礼金 1ヶ月 仲介手数料 1ヶ月(家賃)
業態 飲食可(業態相談)
引渡 即日
備考 ※重飲食不可、和食等相談可
※火災保険加入要。賃貸保証加入要検討。
※ネット等への転載不可。




※画像はGoogleから。現状とは異なる場合あり。
周辺地図:物件は明示していません。詳細はお問い合わせください。
