居抜き店舗物件を紹介します。造作を高価で買取ります。
下北沢 飲食可 2階 27坪 50万円
世田谷区北沢2丁目 物件番号 260325-51
小田急線・京王線「下北沢」駅 徒歩1分
駅至近、下北沢南口商店街沿い
スケルトン渡し
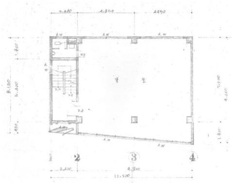
階数・面積 2階 26.84坪 (88.72㎡)
賃料 50万円(税別) 共益費 含む
保証金 6ヶ月(相談) 償却費 20%
契約期間 定借7年 再契約 相談
礼金 2ヶ月 仲介手数料 1ヶ月(家賃)
業態 飲食可(業態相談)
引渡 即日
備考 ※軽飲食可
※火災保険加入要。賃貸保証加入要検討。
※ネット等への転載不可。




※画像はGoogleから。現状とは異なる場合あり。
周辺地図:物件は明示していません。詳細はお問い合わせください。
