居抜き店舗物件を紹介します。造作を高価で買取ります。
恵比寿 飲食可 1階 18坪 67万円
渋谷区恵比寿南3丁目 物件番号 210510-61
JR山手線「恵比寿」駅 徒歩3分
駒沢通一筋違い、恵比寿南三丁目交差点近く
スケルトン、元ショールーム、別区画に高級焼肉店営業中
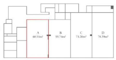
階数・面積 1階 18.3坪 (60.51㎡)
賃料 67.46万円(税別) 共益費 含む
保証金 6ヶ月 償却費 1ヶ月
契約期間 定借5年 再契約 1ヶ月
礼金 なし 仲介手数料 1ヶ月(家賃)
業態 飲食可(業態相談)
引渡 即時
備考
※火災保険加入要。賃貸保証加入要検討。
※ネット等への転載不可。




※画像はGoogleから。現状とは異なる場合あり。
周辺地図:物件は明示していません。詳細はお問い合わせください。
