居抜き店舗物件を紹介します。造作を高価で買取ります。
恵比寿 カフェ居抜 1-3階 28坪 80万円 造作譲渡費 無償
渋谷区恵比寿3丁目 物件番号 240925-41
JR・地下鉄各線 「恵比寿」駅 徒歩8分
プラタナス通り入る路地、ガーデンプレイス近く
居抜、元カフェ
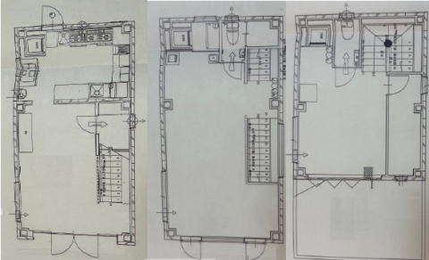
階数・面積 1階 10.81坪 2階 10.23坪 3階 7.34坪
合計 28.38坪 (93.82㎡)
賃料 80万円(税別) 共益費 含む
保証金 8ヶ月 償却費 2ヶ月
契約期間 定借5年 再契約 1ヶ月
礼金 1ヶ月 仲介手数料 1ヶ月(家賃)
造作譲渡費 無償
業態 飲食可(業態相談)
引渡 相談可
備考 ※臭い・煙の強い重飲食不可、
トイレ、エアコン、ダムウェータあり
※火災保険加入要。賃貸保証加入要検討。
※ネット等への転載不可。





※画像はGoogleから。現状とは異なる場合あり。
周辺地図:物件は明示していません。詳細はお問い合わせください。
