居抜き店舗物件を紹介します。造作を高価で買取ります。
渋谷 飲食可 2階 15坪 51万円
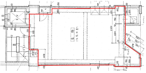
渋谷区渋谷2丁目 物件番号 251205-51
JR・地下鉄・私鉄各線「渋谷」駅 徒歩6分
青山通り沿い、宮益坂交差点そば
スケルトン、元美容室
階数・面積 2階 14.61坪(48.32㎡)
賃料 51.14万円(税別) 共益費 含む
保証金 10ヶ月 償却費 無し
契約期間 2年 更新料 無し
礼金 無し 仲介手数料 1ヶ月(家賃)
業態 飲食可(相談)
引渡 2026年2月1日
備考 ※エレベーター有り、看板掲出料2万円/(税別)、重飲食不可
※火災保険加入要。賃貸保証加入要検討。
※ネット等への転載不可。




※画像はGoogleから。現状とは異なる場合あり。
周辺地図:物件は明示していません。詳細はお問い合わせください。
