居抜き店舗物件を紹介します。造作を高価で買取ります。
代々木 焼鳥居抜 1階 80坪 200万円 造作譲渡費 無償
渋谷区千駄ヶ谷5丁目 物件番号 210604-61
JR山手線「代々木」駅 徒歩1分
駅東口すぐの立地、周辺飲食店多数
居抜、現焼鳥店(盛業中に付き内密に願います)
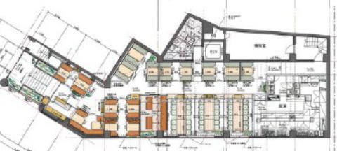
階数・面積 1階(半地下) 79.82坪 (263.87㎡)
*登記上地下1階
賃料 200万円(税別) 共益費 含む
保証金 10ヶ月 償却費 2ヶ月
契約期間 定借3年 再契約 相談
礼金 2ヶ月 仲介手数料 1ヶ月(家賃)
造作譲渡費 無償
業態 飲食可
引渡 相談
備考 ※焼肉相談可
※火災保険加入要。賃貸保証加入要検討。
※ネット等への転載不可。





※画像はGoogleから。現状とは異なる場合あり。
周辺地図:物件は明示していません。詳細はお問い合わせください。
