居抜き店舗物件を紹介します。造作を高価で買取ります。
旗の台 飲食可1階 30坪 87万円
品川区旗の台3丁目 物件番号 210226-64
東急大井町・池上線「旗の台」駅 徒歩1分
東口出口至近、旗の台商店街
スケルトン(未入居)、2021年3月竣工
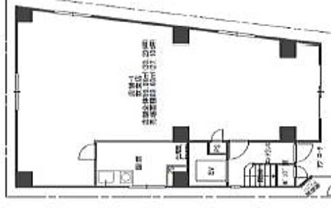
階数・面積 1階 30.21坪 (99.85㎡)
賃料 87万円(税別) 共益費 含む
保証金 10ヶ月 償却費 2ヶ月
契約期間 定借5年 再契約 1ヶ月
礼金 1ヶ月 仲介手数料 1ヶ月(家賃)
業態 飲食可(業態相談)
引渡 相談
備考 ※焼肉・ラーメン相談可
※火災保険加入要。賃貸保証加入要検討。
※ネット等への転載不可。
※画像はGoogleから。現状とは異なる場合あり。




周辺地図:物件は明示していません。詳細はお問い合わせください。
