居抜き店舗物件を紹介します。造作を高価で買取ります。
目黒 重飲食 1階 20坪 83万円
品川区上大崎3丁目 物件番号 200702-11
JR・地下鉄各線 「目黒」駅 徒歩4分
目黒通り、上大崎交差点手前
スケルトン渡し、元アロマスパ
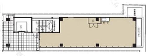
階数・面積 1階 19.86坪(65.68㎡)
賃料 83.42万円(税別) 共益費 含む
保証金 6ヶ月 償却費 なし
契約期間 定借5年 再契約 相談可
礼金 なし 仲介手数料 1ヶ月(家賃)
業態 重飲食含め相談
引渡 相談
備考 ※看板代別途、重飲食可
※火災保険加入要。賃貸保証加入要検討。
※ネット等への転載不可。
※画像はGoogleから。現状とは異なる場合あり。




周辺地図:物件は明示していません。詳細はお問い合わせください。
