居抜き店舗物件を紹介します。造作を高価で買取ります。
神楽坂 飲食可 1-2階 12坪 45万円 造作譲渡費 無償
新宿区神楽坂6丁目 物件番号 220721-42
東京メトロ東西線 「神楽坂」駅 徒歩2分
神楽坂通り一筋入る、白金公園近く
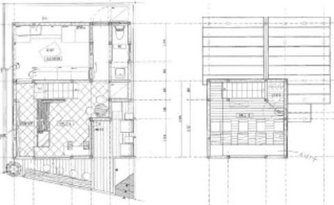
現況渡し、元カフェ
階数・面積 1階 8.25坪 2階 4坪
合計 12.25坪 (40.49㎡)
賃料 45万円(税別) 共益費 含む
保証金 10ヶ月 償却費 3ヶ月
契約期間 2年(転貸) 更新料 1.5ヶ月+手数料0.25ヶ月
礼金 3ヶ月 仲介手数料 1ヶ月(家賃)
造作譲渡費 無償
業態 飲食可
引渡 2025年12月15日
備考 ※匂い・煙の強い業態不可、営業時間24時迄、
初回更新日2027年12月15日
※火災保険加入要。賃貸保証加入要検討。
※ネット等への転載不可。




※画像はGoogleから。現状とは異なる場合あり。
周辺地図:物件は明示していません。詳細はお問い合わせください。
