居抜き店舗物件を紹介します。造作を高価で買取ります。
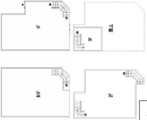
神楽坂 和食居抜 B1-2階 65坪 227万円 造作譲渡費 無償
新宿区若宮町 物件番号 260319-42
地下鉄 「神楽坂」駅 徒歩9分
JR・地下鉄各線 「飯田橋」駅 徒歩5分
小栗通り角地、見番横丁近く
居抜、現日本料理(盛業中に付き内密に願います)
階数・面積 地下1階-2階 合計65.24坪(215.66㎡)
賃料 227.28万円(税別) 共益費 含む
保証金 ヶ月 償却費 227.28万円(税別)
契約期間 定借10年 再契約 相談可
礼金 227.28万円(税別) 仲介手数料 1ヶ月(家賃)
造作譲渡費 無償
業態 飲食可(業態相談)
引渡 2026年7月1日以降
備考 ※屋上あり、重飲食相談可
※火災保険加入要。賃貸保証加入要検討。
※ネット等への転載不可。




※画像はGoogleから。現状とは異なる場合あり。
周辺地図:物件は明示していません。詳細はお問い合わせください。
