居抜き店舗物件を紹介します。造作を高価で買取ります。
両国 飲食可 1階 35坪 53万円
墨田区両国3丁目 物件番号 260227-21
JR線「両国」駅 徒歩2分
駅南口至近、横綱横丁近く
現況渡し、現造花店(盛業中のため内密に願います)
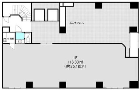
階数・面積 1階 35.18坪(116.33㎡)
賃料 52.79万円(税別) 共益費 10.56万円(税別)
保証金 10ヶ月 償却費 なし
契約期間 定借5年 再契約 20万円(税別)
礼金 なし 仲介手数料 1ヶ月(家賃)
業態 飲食可(業態相談)
引渡 2026年7月上旬予定
備考 ※軽飲食のみ(カフェ・喫茶店)
※火災保険加入要。賃貸保証加入要検討。
※ネット等への転載不可。




※画像はGoogleから。現状とは異なる場合あり。
周辺地図:物件は明示していません。詳細はお問い合わせください。
