居抜き店舗物件を紹介します。造作を高価で買取ります。
池袋南口 飲食可 1-2階 44坪 120万円
豊島区南池袋3丁目 物件番号 260413-42
JR・地下鉄・私鉄各線 「池袋」駅 徒歩2分
東(あずま)通り、明治通り南池袋1丁目交差点近く
スケルトン、元カフェ
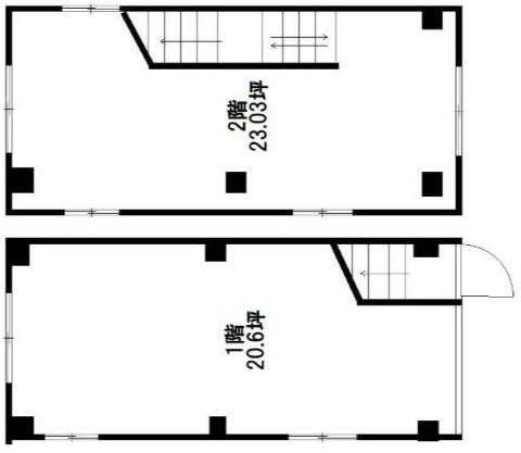
階数・面積 1階 20.6坪 2階 23.03坪
合計 43.63坪 (144.24㎡)
賃料 120万円(税別) 共益費 含む
保証金 8ヶ月 償却費 なし
契約期間 定借3年 再契約 相談
礼金 2ヶ月 仲介手数料 1ヶ月(家賃)
業態 飲食可(業態相談)
引渡 相談
備考 ※2階へ内階段および外階段あり、臭い煙の強い重飲食不可
※火災保険加入要。賃貸保証加入要検討。
※ネット等への転載不可。




※画像はGoogleから。現状とは異なる場合あり。
周辺地図:物件は明示していません。詳細はお問い合わせください。
