居抜き店舗物件を紹介します。造作を高価で買取ります。
池袋西口 飲食可 1階 39坪 87万円
豊島区池袋2丁目 物件番号 251224-51
JR線・地下鉄各線「池袋」駅 徒歩5分
文化通り抜けた先、スーパーホテルそば
スケルトン、元クリニック
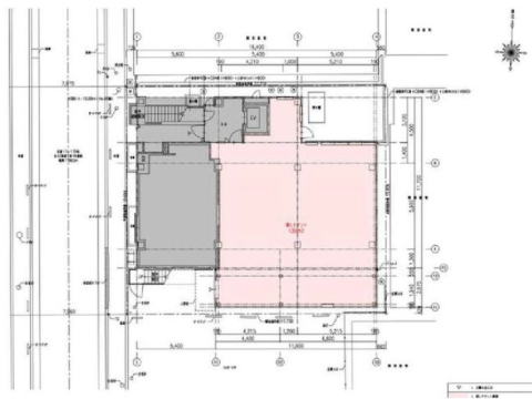
階数・面積 1階 39.33坪(130㎡)
賃料 86.5万円(税別) 共益費 含む
保証金 6ヶ月 償却費 1ヶ月
契約期間 定借5年 再契約 相談
礼金 無し 仲介手数料 1ヶ月(家賃)
業態 飲食可(業態相談)
引渡 相談
備考 ※重飲食不可
※火災保険加入要。賃貸保証加入要検討。
※ネット等への転載不可。




※画像はGoogleから。現状とは異なる場合あり。
周辺地図:物件は明示していません。詳細はお問い合わせください。
