居抜き店舗物件を紹介します。造作を高価で買取ります。
巣鴨 飲食可 1階 17坪 42万円
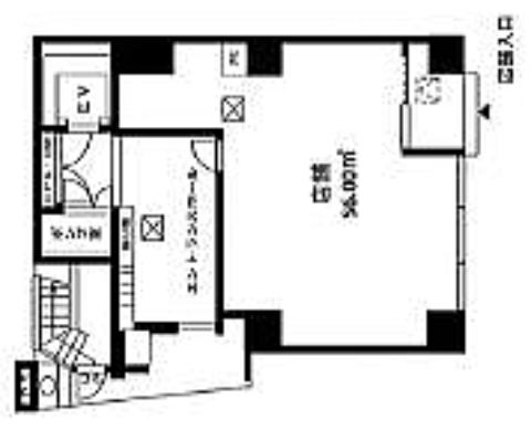
豊島区巣鴨2丁目 物件番号 231211-65
JR山手・都営三田線「巣鴨」駅 徒歩2分
白山通り、巣鴨信用金庫本部並び、角地
新築スケルトン、2023年5月竣工
階数・面積 1階 16.94坪 (56㎡)
賃料 42万円(税別) 共益費 6万円(税別)
保証金 10ヶ月 償却費 相談
契約期間 2年 更新料 1ヶ月
礼金 1ヶ月 仲介手数料 1ヶ月(家賃)
業態 飲食可(業態相談)
引渡 即日
※火災保険加入要。賃貸保証加入要検討。
※ネット等への転載不可。
※画像はGoogleから。現状とは異なる場合あり。




周辺地図:物件は明示していません。詳細はお問い合わせください。
