居抜き店舗物件を紹介します。造作を高価で買取ります。
巣鴨 飲食可 1階 27坪 40万円
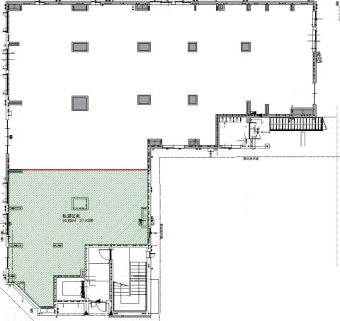
豊島区巣鴨1丁目 物件番号 250529-44
JR・地下鉄各線 「巣鴨」駅 徒歩3分
巣一商店街入る、まいばすけっと隣り角地
スケルトン、元スーパー
階数・面積 1階 27.43坪 (90.68㎡)
賃料 40万円(税別) 共益費 含む
保証金 6ヶ月 償却費 なし
契約期間 定借14年 再契約 相談
礼金 1ヶ月 仲介手数料 1ヶ月(家賃)
業態 飲食可(業態相談)
引渡 相談
※火災保険加入要。賃貸保証加入要検討。
※ネット等への転載不可。




※画像はGoogleから。現状とは異なる場合あり。
周辺地図:物件は明示していません。詳細はお問い合わせください。
